賃貸マンションをお探しの方へ
コーシャハイツ森之宮 <一般賃貸> 713号室 2DK タイプ[C]
※ 自動点灯照明スイッチ設置済のため、別途月額600円がかかります。
| 敷金 | 293,700円 |
|---|---|
| 契約家賃 | 97,900円 |
| 住戸面積 | 50.60m² |
| バルコニー向き | 9.00m²(東向き) |
| 共益費 | 5,500円 |
| 備考 |
| 住所 | 大阪市城東区森之宮2丁目4-32 |
|---|---|
| 交通 | Osaka Metro(地下鉄)中央線「森ノ宮」徒歩7分 JR大阪環状線「森ノ宮」徒歩7分 |
| 管理戸数 | 221戸 |
| 管理開始日 | 2001年12月1日 |
| 築年数 | 24年 |
| 駐車場 | 115台 |
| 駐車場料金 | 11,438〜17,264円(消費税込み) |
| 設備 |
|
| 構造 | 鉄骨鉄筋コンクリート(地上14階) |
| タイプ | 間取り | 住詳細間取り | 間取り図 |
|---|---|---|---|
| A | 2K | 洋室4.2畳、和室6畳、K4.1畳 | 間取り図 |
| B | 2K | 洋室4.2畳、和室6畳、K4.1畳 | 間取り図 |
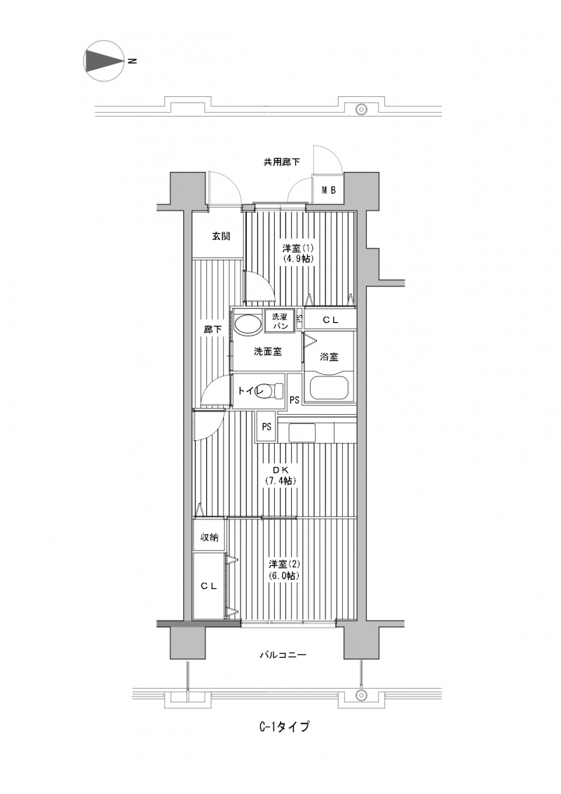
| C | 2DK | 洋室4.9畳、和室6畳、DK7.4畳 | 間取り図 |
| C-1 | 2DK | 洋室4.9帖、洋室6帖、DK7.4帖 | 間取り図 |
| D | 2DK | 洋室4.9畳、和室6畳、DK7.4畳 | 間取り図 |
| E | 3DK | 洋室5.2畳、洋室4.6畳、和室6畳、DK8.6畳 | 間取り図 |
| F | 3DK | 洋室5.2畳、洋室4.6畳、和室6畳、DK8.6畳 | 間取り図 |
| G | 3DK | 洋室5.2畳、洋室4.6畳、和室6畳、DK8.6畳 | 間取り図 |
| H | 3LDK | 洋室4.9畳、洋室4.9畳、和室6畳、LDK11.5畳 | 間取り図 |
| KRI | 1LDK | 洋室4.9帖 LDK13.4帖 | 間取り図 |
物件一覧
1 / 1
1
| 住宅種別 | ▼▲間取り別 | ▼▲入居者負担額 | ▼▲徒歩時間順 | ▼▲行政区順 | |
|---|---|---|---|---|---|
| 住宅種別 | 間取り別 | 入居者負担額 | 徒歩時間順 | 行政区順 | |
コーシャハイツ森之宮 408号室[ 一般賃貸 ] |
2K[B] | 78,500円 | Osaka Metro(地下鉄)中央線「森ノ宮」徒歩7分 | 城東区 |
反転タイプ 詳細を見る商談中です |
コーシャハイツ森之宮 413号室[ 一般賃貸 ] |
2DK[C] | 97,900円 | Osaka Metro(地下鉄)中央線「森ノ宮」徒歩7分 | 城東区 |
詳細を見る 商談中です |
コーシャハイツ森之宮 713号室[ 一般賃貸 ] |
2DK[C] | 97,900円 | Osaka Metro(地下鉄)中央線「森ノ宮」徒歩7分 | 城東区 |
詳細を見る 商談中です |
| ※ 自動点灯照明スイッチ設置済のため、別途月額600円がかかります。 | |||||
1 / 1
1

